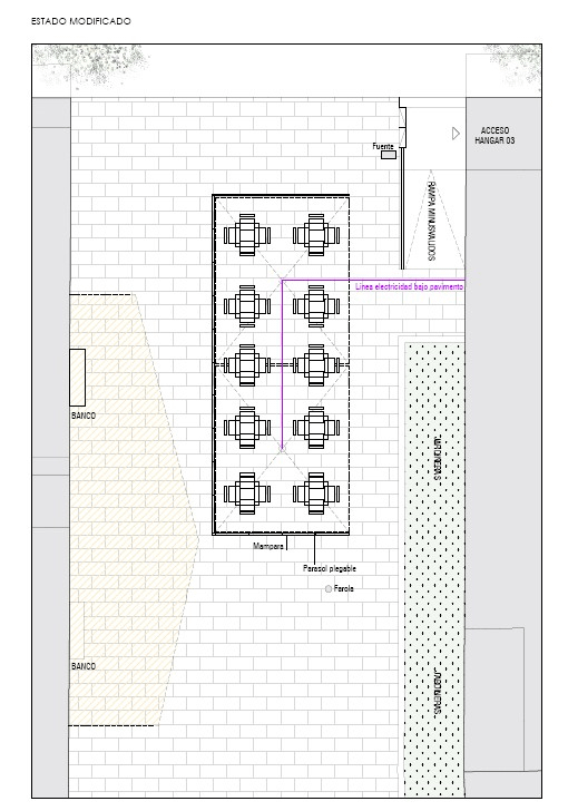
Diseño de espacio exterior HANGAR 03

Comercial | Otros